• ремонты от компании StroySila
  • укладка тротуарной плитки
  • Jumping to a New Level

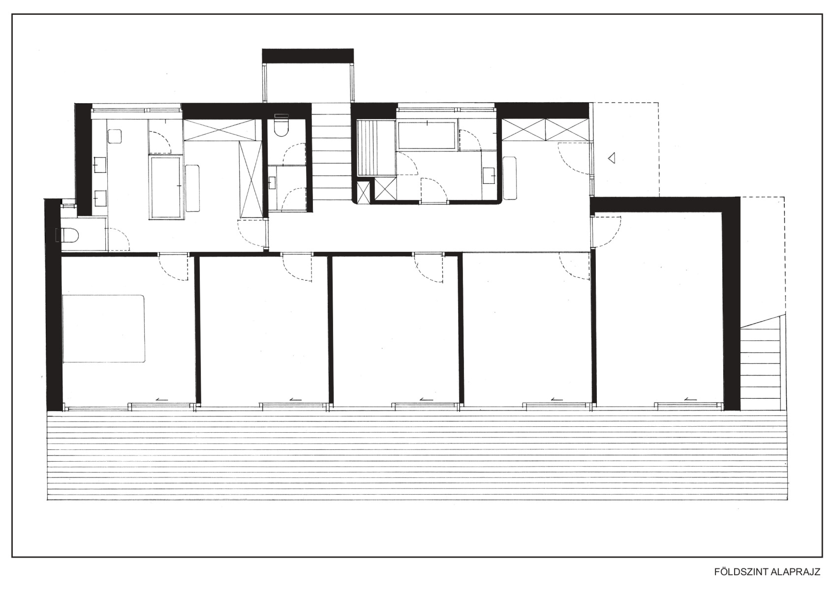
    A Detached Family House, Budakeszi

    Architect: Sándor Takács S.
    Text: Sándor Csontó
    Photos: György Darabos

    The majority of modern houses today seek to attract attention with their progressive architectural style matched with unique appearance. This detached family house on the Buda side is much more generous than the clichés and was built according to an architectural programme that differs from the so-called norm. The property, which focuses on family and social life, evokes the tradition of the vernacular longitudinal farmhouse, a building contour, but at the same time avoids any nostalgic gestures from afar. Based on the unusual, inverted horizontal plan, all of the ground floor rooms face west, overlooking the sloping terrain of the garden, the pool, and the mountain range in the distance. The upstairs open-plan communal space, kitchen, dining room, living room, as well as the semi-covered roof terrace that can be connected to them offer a magnificent panoramic view of the surroundings. The glazed entrance is shaded by a green canopy, and the staircase, which is discreetly hidden from the neighbourhood, protrudes from the wall, with nature greeting visitors through the full-height windows opposite. The building offers fairly varied views from its different rooms, creating an exceptional and intense visual and physical connection with nature. The combination of full-height glazed surfaces and wooden cladding on the ground floor of the house subconsciously evoke traditional images. The continuous glass expanse framing the entire upper-floor façade ensures complete transparency almost everywhere on both levels.

    Architecture, interiors: Sándor Takács S.
    Structure: Béla Balogh
    HVAC: Tibor Partl
    Garden: Annamária Sinkó