• ремонты от компании StroySila
  • укладка тротуарной плитки
  • Abilities and Possibilities

    The new building complex of Szent György Hospital in Székesfehérvár

    Architect: Attila Gáva
    Text: Péter Debreczeni
    Photos: György Palkó

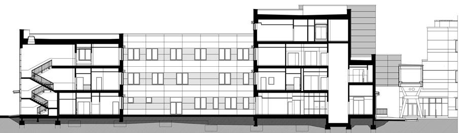
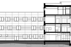
    The Szent György Hospital is a pavilion-style institution with a very diverse building stock. The newly completed building is one stage in a long development process. The process itself began in the late 1970s with infrastructure investments, when the hospital’s auxiliary functions were built. Subsequently, a new hotel building, operating theatre, diagnostic department and outpatient clinic were built, although only the latter two were actually completed. However, many functions did not receive new premises and continued to operate in unsuitable conditions scattered around the hospital grounds. In the next phase of development, which continues to this day, Gav-Art Studio, led by Attila Gáva, joined the project in the early 2010s. The new buildings are wedged between the hotel and the infrastructure base and are connected to the hospital’s internal traffic route via the existing corridor. The internal medicine building, which was handed over this year, contains hospital wards, so it was necessary to provide natural light in the interior spaces. For this reason, it is organized around a light-filled atrium, with the wards accessed from a central corridor. The three-story, 112-bed building serves three departments. Its floor plan fully complies with hospital technology requirements. According to the original plans, the building’s floor area would have been twice as large as the actual size, extending further toward the boiler rooms with an additional atrium. Although this did not happen, it is hoped that further wings will be built in the near future in a similar spirit. 

     

    General planning: Gav-Art Studio
    Architect: Attila Gáva – Gav-Art Studio
    Interiors: István Szenes – Szenes Design Studio
    HVAC: Zalán Démuth – Geocalor Invest
    Current power: Sándor Tóth, Zsolt Szelik – Planet Ltd.
    Weak power: András Ritzl – T-Sec Hungary
    Automatics: István Hegedüs – Tematik Automatisation
    Hospital technology, accessibility: Gábor Finta – Health Planning
    Fire protection: Bendegúz Csuba, Attila Botond Juhász – Ventor Fire Protection
    Acoustics: Tibor Zsíros 
    Outdoor covers: Péter Polányi – Közlekedésfejlesztés Ltd.
    Water public utilities: Tibor Török 
    Garden, planting: Nóra Krajnyák 
    Geodesy: Róbert Farkas 
    Soil mechanics: Balázs Móczár Dr – GeoExpert
    Lift / Elevator: Bosnakoff Miklós – Otis