• ремонты от компании StroySila
  • укладка тротуарной плитки
  • From an Industrial Enclave to a College

    Slachta Margit College, Budapest

    Architects: Alfréd Peschka, Gabriella Öcsi
    Text: Péter Debreczeni
    Photos: Tamás Bujnovszky

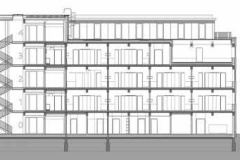
    To the west of the capital city, Budapest, along the road leading to the motorway, a blue-framed industrial building had stood vacant for more than a decade. The area itself, squeezed between the main roads and the nearby railway line, was a crowded mixed industrial and residential zone, which in recent decades has increasingly turned into a residential neighborhood. The nearby industrial buildings were gradually converted into office or residential buildings, but the abandoned former laboratory center remained on this corner lot as if an enclave. Recognizing the building’s potentials, architects from Közti, Alfréd Peschka and Gabriella Öcsi, together with their colleagues, proposed a conversion to the new owner instead of a planned demolition. The new function involved students’ rooms and multifunctional and communal spaces suited for a variety of training activities. The existing structure and the strict layout of the floor plan proved to be almost perfectly suited to accommodate all of these functions, so the conversion required only some minimal expansion after the demolition of the damaged or unnecessary structures.

    General planning: Közti Ltd.
    Lead architects: Alfréd Peschka, Gabriella Öcsi
    Fellow architects: Anna Libertiny, László Szabó – DOB60 Architects
    Interiors: Anna Libertiny, Gabriella Öcsi
    Technical co-ordination: J. Tibor Molnár 
    Structures: Péter Váczi, Béla Dobráter
    Electrical engineering: András Ritzl, András Máramarosi, Péter Gáspár, László Harmath
    HVAC: Szilárd Szakál, János Réti, Zoltán Virág
    Building constructions: László Horváth – Estrad Architects
    Landscape: Sándor Mohácsi, Fanni Balogh – S73