• ремонты от компании StroySila
  • укладка тротуарной плитки
  • A Residential Castle with Extras

    Metrodom Green Residential Park, Budapest

    Architect: Zsolt Hajnal
    Text: Mária Tatai
    Photos: Norbert Juhász

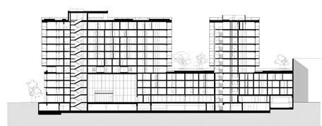
    Ferencváros, which until recently played an important economic role, is undergoing a major renewal, with numerous new residential buildings being constructed on the site of century-old industrial buildings. The Metrodom corner lot was previously occupied by a plastic processing plant. The first phase of the 110 x 110-metre, frame-built, 508-apartment condominium has been completed, but the layout is already taking shape, reminiscent of traditional Pest tenement houses with a large park in the middle. The lower four floors, which run around the perimeter, are clearly separated from the six floors above, which are slightly shifted back. It can even be considered a brick-clad plinth, divided by vertical slits of varying widths, the latter containing windows and balconies. The upper four floors, covered with living ivy running horizontally and vertically along the façade, are built on this powerful base. The main entrance is located in a giant “glass house” carved out of the block on Vágóhíd Street, which is a four-story reception area set back from the front walls and bordered by glass walls on both long sides. We enter an unusually spacious lobby for a residential building, but since this is a building that will ultimately be home to a community of residents, it is entirely justified that it should have an elegant central space. From here, we can go on to the inner garden or the ground-floor corridors, which provide access to a number of common areas. The building offers several opportunities for the kind of community life that is so often desired today: in club rooms, on green terraces, or in the garden. From the roof terrace, residents and their guests can enjoy a panoramic view of the surroundings and get to know the area better.

    Lead architect: Péter Kendelényi
    Architect: Zsolt Hajnal 
    Fellow architects: András Csiha, Péter Farkas, Lukács Fedor, Ágnes Hadházi, Péter Nguyen, Zoltán Schadl, Gergő Szabó, Kolos Szalántzy, László Szász, Gergő Tomasák, Csaba Tóth, Ilona Veres
    Interiors: Katalin Imre, Blanka Zvolenszki
    Structure: Tamás Méri
    HVAC: Géza Hivessy, András Domina
    Electrical engineering: Kornél Mátyus
    Building construction: Sándor Horváth 
    Garden: Péter István Balogh Dr
    Fire protection: Bendegúz Csuba
    Acoustics, environment protection: Róbert Csott
    Public roads, garage technology: Dániel Pach 
    Watering network: Péter Karlócai 
    Elevator: Ferenc Sütő