• ремонты от компании StroySila
  • укладка тротуарной плитки
  • Melting Pot or Ornament?

    Faculty of Pharmacy, University of Debrecen

    Architects: László Monori, Tamás Tótszabó
    Text: Anna Szövényi
    Photos: Bálint Jaksa

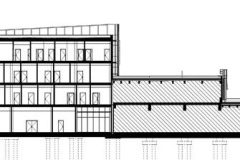
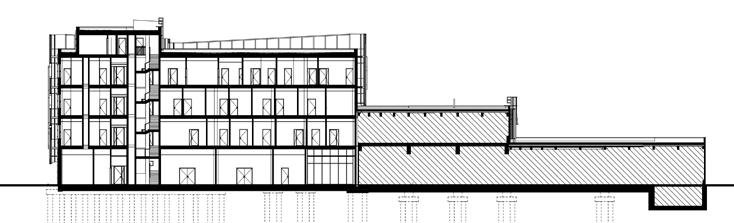
    A few years ago, the University of Debrecen embarked on a new development: it wanted to implement and launch a new type of pharmaceutical education, unique in Hungary, by combining industry, manufacturing, and theoretical education, with all these functions being melted into one single building. Here students can observe the entire process of pharmaceutical manufacturing, starting from research to product production. This challenge is also significant from an architectural point of view: how can so many different functions be merged within a single building? Instead of the usual industrial layout, which is the hall + neck + main building, a different configuration was devised here. The goal was to merge the two volumes and two functions, and what’s more, they wanted also to visually connect the auditorium space with the factory unit. The architects drew on one of the chemical processes for this project: melting, which in this case also means merging and blending. The mass of the building on the entrance side already conveys the duality resulting from the combination of functions upon our arrival: the four-story university office building-style educational wing and the single-story production plant form the forecourt. The difference in facade height is bridged over by the two-storey volume of the auditorium, which partially extends over the industrial hall, thus creating a balance between the two heights. The architectural concept is also based on the relationship between these two significantly different functions and mass ratios. According to the creator’ intention, the two functions are connected not only by the auditorium itself, but also by a mesh sunshade that symbolizes their fusion. 

    Client: University of Debrecen
    Architecture: Pyxis Nautica Architects
    Lead architects: László Monori, Tamás Tótszabó
    Project architects: János Varga, Igor Valastyán
    Fellow architects: Blanka Ádám, Ferenc Kis, Ágnes Péntek, Tamás Tácsik, Frida Tibai, Dávid Tóth
    Interiors: László Monori – Pyxis Nautica Architects
    Garden, landscape: Máté Galambos 
    Structure: Dániel Karsai – BIMoment
    HVAC: Rajmund Szénási – SZERAJ-BIM
    Electrical engineering: Dávid Sándor – Sdesign Electric
    Main contractor: István Kovács – Társ-95