• ремонты от компании StroySila
  • укладка тротуарной плитки
  • A Terrasse over the City

    Goodwill Office Building, Szeged

    Architect: Csongor Török
    Text: Péter Vesmás
    Photos: Zsófia Török

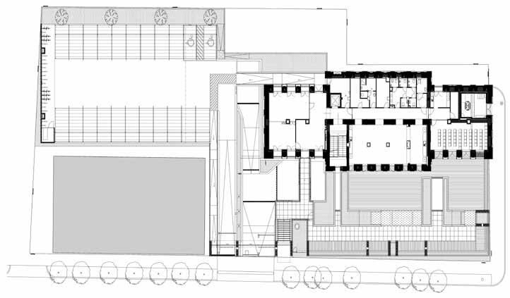
    The pharmaceutical company named Goodwill purchased a dilapidated corner lot half a block in size in Szeged to build its new office building on. It was quite a sensible decision to make use of the two existing buildings preserved on the site. Architect Csongor Török successfully realised the client’s vision. The investment is being carried out in two stages, and the first structure which has now been completed, has resulted in a generous solution due to the corner positioning of the plot. It opens up towards the street, whilst the pergola framing is an integral part of the building. Beneath the “front garden” there is a half-level sunken and shifted car park with a terrace planted with vegetation on top. The office building is characterised by a vibrant use of space on every single floor, with communal areas and open-plan offices alternating with functions and offices requiring enclosed spaces. The design of the rooftop terrace appears also generous. The future of the new district that is being created here is already visible. The architectural quality achieved in this project can serve as a model for the development of the dilapidated area on the verge of slumming behind the city’s notorious Csillag prison and the Mars Square market.

    General planning: Csongor Török Architects
    Lead architect: Csongor Török 
    Interiors: András Mészáros – PROJECT MA
    Structure: Ferenc Pusztai
    HVAC: Viktor Sándor – A4 Ltd.
    Electrical engineering: Tamás Szalóki – Szel-terv
    Fire protection: László Miskolczi – Safety 2010
    Rehabilitation:  Ildikó Kakusziné Tamasy
    Environment expert: Norbert Váradi
    Main contractor (framework): Ferroép
    Main contractor (finishing work): Bodrogi Bau