• ремонты от компании StroySila
  • укладка тротуарной плитки
  • Visiting the Károlyi Family

    Reconstruction of the Károlyi Castle, Fehérvárcsurgó

    Architect: Réka Kralovánszky
    Text: Zoltán Dragon
    Photos: Angelica Károlyi, Ágnes Fekete

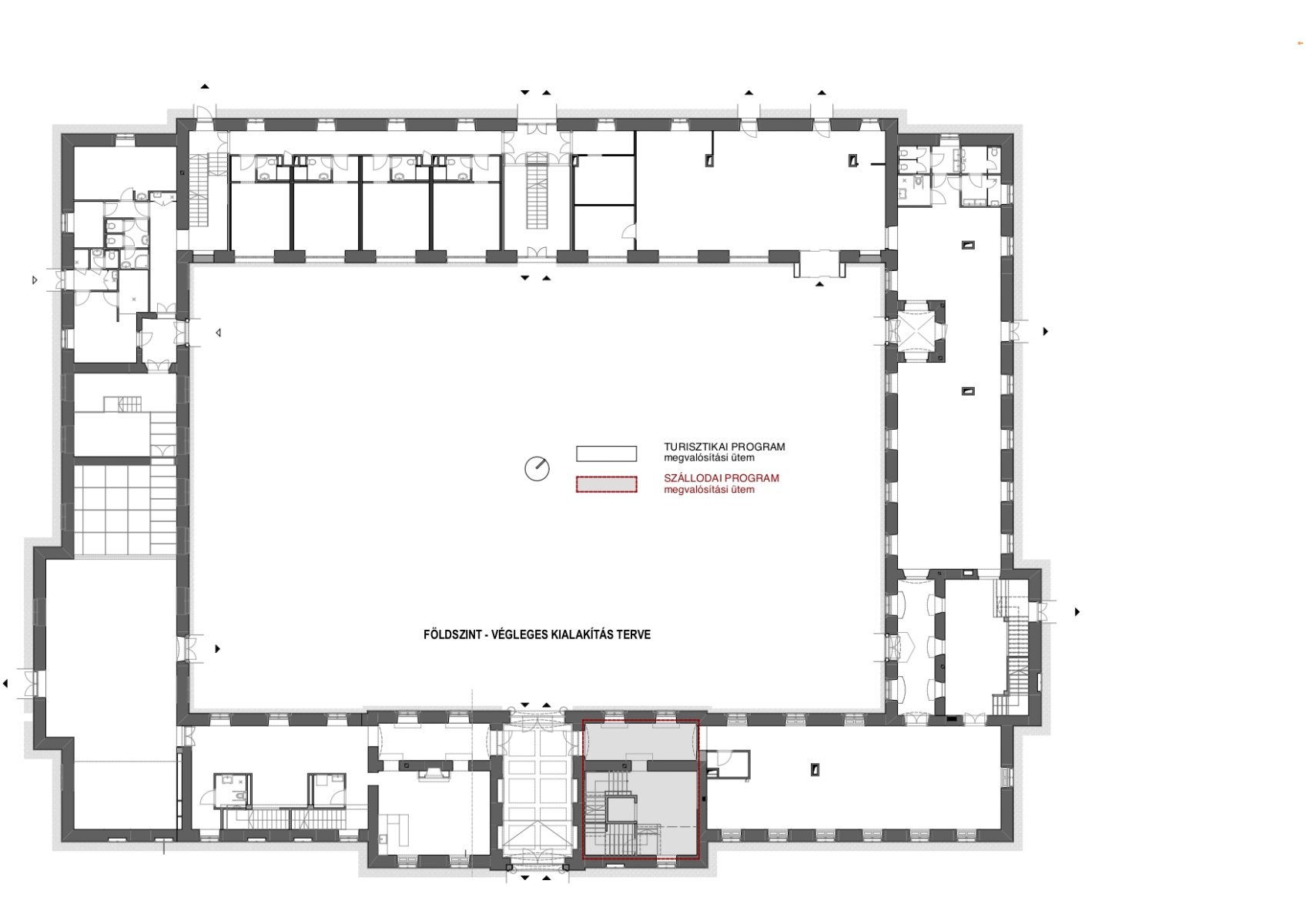
    The Károlyi Castle in Fehérvárcsurgó is widely known as a hotel with a first-class restaurant and part of a huge arboretum-like park. However, the castle is also one of the centres of Francophone culture in Hungary, and with the renovation and conversion of the former stable building, it is now an interactive exhibition space that meets all the modern requirements. The castle is owned by the Hungarian State, managed by Fehérvárcsurgói Károlyi Kastély Fejlesztő és Üzemeltető Zrt. (Károlyi Castle Development and Management Ltd.), and operated by the Károlyi József Foundation. The latter maintains two larger and two smaller libraries, whose collections cover history, political science, sociology, family history, heraldry and, to a lesser extent, theology. The castle’s tourist and cultural functions are intertwined: its representative, partially reconstructed rooms can be visited with a guide, and the playhouse/activity centre is located next to the main staircase. However, the exhibition and educational functions covering family history have been carefully separated from the main building and placed in the visitor centre set up in the former stable building. The third unit has been converted into a multifunctional hall, which is used as a film screening room or a concert and event venue.

    Architect:  Réka Kralovánszky – Szakra Studio
    Structure: Ferenc Kamarás – Kamarás.o.k.
    HVAC:  József Kalmár – Piraton Komplex
    Current power:  Zsuzsanna Kovácsné Homonnai† – InterHázTech
    Weak power: Péter Kovács – InterHázTech
    Interiors: Enikő Angyal-Tattay
    Historical interieur: Rita Igaz